您所在的位置:首页  >  公司动态

威海克莱特菲尔风机股份有限公司​向我司采购大型带风洞半消声室项目

更新日期: 2022-12-09 15:42:42

威海克莱特菲尔风机股份有限公司向我司采购大型带风洞半消声室项目

概括:

     威海克莱特菲尔风机股份有限公司是一家从事通风机、通风冷却系统等通风与空气处理系统装备及配件设计研发和生产制造的高新技术企业,主营业务为从事轨道交通通风冷却设备、能源通风冷却设备、海洋工程和舰船风机、冷却塔和空冷器风机、制冷风机等中高端装备行业通风设备产品及系统的研发、生产、销售及相关检修服务。

     他们选择广州丹品人工环境技术有限公司合作,是因为广州丹品人工环境技术有限公司是由一批国内外多年从事各类声学技术研究、具有丰富理论和实践经验的声学专家和专业工程师团队组成,拥有自己的写字楼和工厂,工厂内建有符合 CNAS 标准的声学实验室,可以监控自己产品的声学技术指标及对外进行声学测试服务。通过丹品团队的艰苦奋斗和持续不断的创新与发展,其设计、生产、安装的声学实验室具有技术指标精准、绿色环保、质量耐用、外观漂亮、科技含量高的产品。

     半消声室不仅是声学测试的一个特殊实验室,而且是测试系统的重要组成部分,实际上它也是声学测试设备之一,其声学性能指标直接影响测试的精度。消音室、消声室、静音室、混响室、半消音室、半消声室、全消音室、全消声室具体声学设计、制造施工安装及现场实测验收简单介绍等后续资料请留意浏览本公司的官方网站中的工程案例,或扫描本公司微信公众服务号二维码得到免费推送,消音室、消声室、静音室、混响室、半消音室、半消声室、全消音室、全消声室详细资料则请到本公司的官方网站中的下载中心免费下载。


二、采购内容

1、带风洞半消声室


三、依据标准

(1)GB 6882-2016 《声学:噪声源声功率的测定:消声室和消声室精密法》;
(2)ISO 3745-2012 《声学 噪声源声功率级的测定-消声室和消声室精密法》
(3)JJF 1147-2006 《消声室与消声室声学特性校准规范》
(4)GB/T 3767-2016《声学 声压法测定噪声源声功率级 反射面上方近似自由场的工程法》
(5)GB/T 34877.3-2017 《工业风机 标准实验室条件下风机声功率级的测定 第 3 部分:包络面法》
(6)GB 50243-2016《通风与空调工程施工质量验收规范》
(7)GB 50034 《建筑照明设计标准》
(8)GB 8624《建筑材料及制品燃烧性能等级》
(9)GB/T 18883《室内空气质量标准》
(9)GB∕T 1236-2017 工业通风机 用标准化风道性能试验
(10)《噪声与振动控制工程手册》——机械工业出版社,马大猷主编通过上述声学相关标准的要求,正确测定、分析产品的噪声特性,以确定产品的噪声水平,并采取相应措施降低产品噪声,提高产品质量。


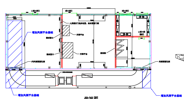
四、项目内容

(1)顶部搭建钢结构框架,由我司负责;

(2)半消声室安装项目内部的有效净尺寸:13. 9m士100mm (L)*12.9m土100mm (W) *8.1m士100mm(H)。


五、半消声室产品验收主要条款:

(1)当周围环境无异常干扰(如砸地、打桩、冲击等),半消声室室内本底噪声 Lgn(A)≤30dB(A);

(2)截止频率:Fc≤63Hz。

(3)设备门净尺寸为:外声闸门: 4m(W) *3m(H),
(4)人员通行门净尺寸为: 1m (W)*2m(H) ;



                 



更多具体内容欢迎来电咨询,或扫描下方二维码获取我更多动态